Транспортеры УСУ в Йошкар-Оле

Скребковый цепной транспортер подачи угля в котельную с улицы.

Цена с НДС:
1 200 000 рублей
Цена с НДС на транспортеры УСУ с доставкой в
от 1 200 000 рублей
Условия в
В наличии на складе
Доставка ТК по России и Казахстану
Безналичный расчет
Есть в наличии
Транспортер ТС
Транспортер ТС
Транспортер ТС
Технические
характеристики
Описание
товара
Дополнительное
оборудование
Сертификаты
и гарантии

Технические характеристики транспортера УСУ

Тип Скребковый транспортер, Топливоподача
Марка Углеподача УСУ
Производительность минимальная 0.5 т/ч
Производительность максимальная 30 т/ч
Угол наклона 28 °
Длина транспортера минимальная 10 м
Длина транспортера максимальная 50 м
Количество поворотных секций 1-2 шт
Длина секции 750-3000 мм
Ширина секции внутренняя 400 мм
Высота секции внутренняя 380 мм
Угол перегиба поворотных секций до 30 ˚
Высота скребка 80 мм
Шаг скребков подбирается производительности мм
Транспортируемый материал топливо, уголь, шлак, зола и прочее
Насыпная плотность транспортируемого материала 2 т/м³
Максимальный размер куска 100 мм
Шаг тяговой цепи 100-250 мм
Масса 0.2 кг
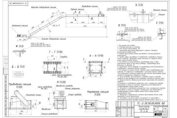
ТС 2-30 транспортер чертеж
Транспортер ТС 2-30 чертеж
Чертеж транспортера ТС 2-30 с углом наклона 45°
Транспортер ТС 2-30 с углом наклона 45° чертеж
Чертеж транспортера ТС 2-30 с углом наклона 30°
Транспортер ТС 2-30 с углом наклона 30° чертеж

Транспортеры УСУ представляют собой устройства, собранные между собой последовательно короба - желоба с крышками, для транспортировки груза, в концевых точках крайних коробов смонтированы валы с зубчатыми колесами для установки транспортерной цепи со скребками, к одному из валов посредством привода прикладывается усилие для передачи вращения зубчатых колес и соответственно движению цепи. Путем изменения количества прямолинейных секций и применением поворотных секций транспортера УСУ имеется возможность создавать различную траекторию с углом перегиба 30°:

  • горизонтальную с поворотом на подъем
  • с верхним и нижним горизонтальным участком транспортировки.

Технические характеристики транспортеров УСУ:

Наименование Показатель
номинальная производительность транспортера скребкового, м3 1,25, 1,60; 2,00; 2,50; 3,15; 4,00; 5,00; 6,30; 8,00; 10,00; 12,50; 16,00; 20,00; 25,00; 31,50; 40; 50; 80; 100; 125; 160; 200; 250; 315; 400; 500; 630; 800
насыпная плотность перемещаемого груза до, т/м3 2,0
длина транспортирования до,м 50
внутренняя ширина короба, мм 125; 200; 320; 400; 500; 650; 800
рабочая высота короба, мм (Рабочая высота короба соответствует номинальной высоте слоя транспортируемого груза) 90; 125; 200; 320; 400; 500
шаг тяговой цепи,мм 100; 125; 160; 200; 250
номинальная скорость движения тяговой цепи м/с, (Допускаются отклонения скоростей от номинальных в пределах ± 10 %) 0,100; 0,125; 0,160; 0,200; 0,250; 0,315; 0,400; 0,500; 0,630; 0,800; 1,000
удельная масса, не более, т/м 0,2
установленный ресурс до капитального ремонта не менее,часов 1600
наработка на отказ не менее, часов 3000
удельный расход электроэнергии не более, кВт*/ч/(м*т) 0,5
срок службы не менее, лет 7

Транспортеры скребковые выполняются по ГОСТ 4.21.

Транспортеры скребковые УСУ состоят из следующих узлов:

  • прямые секции (короба);
  • приводная секция (короб);
  • натяжная секция (короб);
  • привод скребкового транспортера;
  • поворотные секции (короба) (по согласованию с заказчиком);
  • щит управления (по согласованию с заказчиком);
  • опорно-каркасные элементы (по согласованию с заказчиком);
  • запорные органы (по согласованию с заказчиком);
  • вспомогательные приспособления и инструменты в соответствии с ведомостью ЗИП.

Для удобства обслуживания, очистки коробов, регулирования узлов, а так же проведения ремонтных работ скребковый транспортер УСУ имеет полностью съемную крышку на секциях.

Купить транспортеры УСУ

Для того чтобы купить транспортер УСУ в Йошкар-Оле, вы можете сделать заявку в отдел сбыта по телефону 8-800-700-06-43, либо оформить заявку онлайн. Точная стоимость транспортера УСУ определяется согласно техническому заданию и заполненному опросному листу. Транспортер доставляется автотранспортом и ж/д контейнерами. Для расчета стоимости Транспортера УСУ и доставки пришлите заявку и инженеры консультанты проведут расчет стоимости УСУ и ее доставки до вашего города или населенного пункта.

Дополнительное оборудование транспортера УСУ

ВДП 15 дробилка
Дробилка ВДП-15
1135000 руб. с НДС
Скребковый транспортер ТС 2-30
Транспортер ТС 2-30
1200000 руб. с НДС

Скребковый цепной транспортер подачи угля в котельную с улицы и удаления золы и шлака из под котлов за пределы котельной.

Транспортер золоудаления
Золоудаление
1150000 руб. с НДС
  • Скребковый цепной транспортер для удаления золы и шлака из под котлов за пределы котельной
Бункер шлака
Бункер шлака
770000 руб. с НДС

Сертификаты и гарантии транспортера УСУ

Сертификат для конвейера
Сертификат на конвейер

Отзывы о продукции

Другая похожая продукция

1 150 000 ₽
1 200 000 ₽
1 135 000 ₽